42 starfa þar sem 18 störfuðu áður
Forstjóri FSR fjallaði um verkefnamiðað vinnuumhverfi á Nýsköpunardegi hins opinbera
Guðrún Ingvarsdóttir, forstjóri FSR fjallaði meðal annars um verkefnamiðað vinnuumhverfi og fjarvinnu á nýsköpunardegi hins opinbera, sem haldinn var í vikunni. Í erindi hennar kom meðal annars fram að starfsfólk FSR hafi gert róttækar breytingar á vinnuumhverfi sínu undanfarið, enda starfsfólki fjölgað úr 18 í 42 á þremur árum.
Nýsköpunardagur hins opinbera var haldinn í þriðja sinn þann 21. janúar síðastliðinn. Tilgangur dagsins er að deila nýjum lausnum í rekstri stofnana og stuðla með því að nýsköpun, sparnaði og bættum vinnubrögðum. Meðal þátttakenda var Guðrún Ingvarsdóttir, forstjóri Framkvæmdasýslunnar.
Erindi Guðrúnar fjallaði um verkefnamiðað vinnuumhverfi (VMV), sem hentar sérstaklega í þekkingarstarfsemi. Sífellt færri störf innan stjórnsýslunnar felast í svokölluðum sífelluverkefnum. Verkefnin eru því fjölbreyttari. VMV gengur í megindráttum út á að skapa aukna möguleika á samvinnu starfsfólks, auka sveigjanleika húsnæðis og nýta nýja tækni til að mæta nýjum vinnubrögðum. 
Nýverið gaf FSR út viðmið um vinnuumhverfi ríkisstofnana, þar sem stóraukin áhersla er lögð á VMV. Á sama tíma kynnti fjármálaráðuneytið nýja stefnu sem styður við markmið viðmiðanna. Hægt er að kynna sér viðmiðin og stefnuna hér.
Í máli Guðrúnar kom meðal annars fram að fjöldi og umfang verkefna FSR hafi aukist mikið á undanfönum þremur árum. Samhliða því hefur starfsfólki fjölgað úr 18 í byrjun árs 2018 í 42 á fyrri hluta 2021. FSR er enn í sama húsnæði hefur því þurft að sýna ítrustu útsjónarsemi í gerð vinnuaðstöðu fyrir starfsfólk. Það hefur engu að síður tekist.
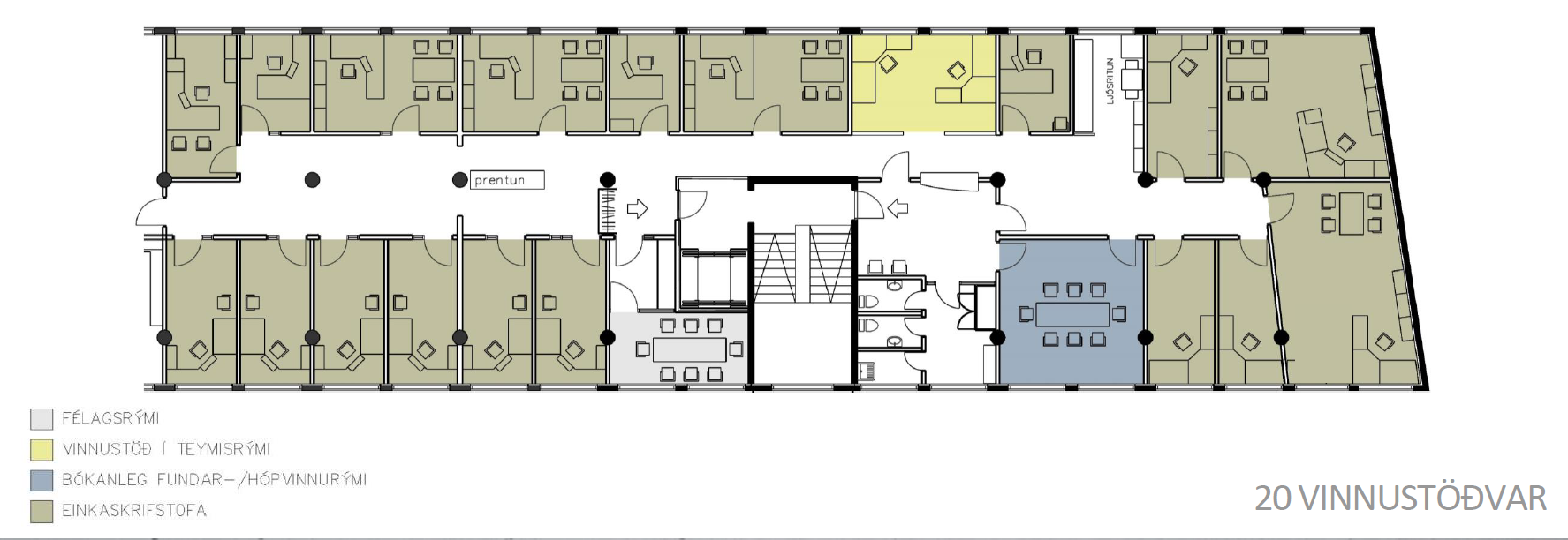
Á myndinni hér að neðan má sjá hvernig uppröðun vinnustöðva var árið 2018.
Hér má sjá uppröðun vinnustöðva eftir breytingar á húsnæðinu á síðasta ári:

Þessi ráðstöfun er þó hugsuð til bráðabirgða, enda er pláss á hvert stöðugildi komið langt undir gefin viðmið. Engu að síður fer vel um alla og sérstaka gleði vekur félagsrými (hjarta) stofnunarinnar sem margfaldaðist að stærð við breytingarnar.

Starfsfólk hefur allt fengið fartölvur til umráða og getur með einföldum hætti stungið þeim í samband við skjái og annan jaðarbúnað við hvaða vinnustöð sem er. Þá var Microsoft Teams tekið til notkunar í verkefnastjórnun og samvinnu fyrir rúmu ári, rétt í tæka tíð fyrir farsóttina. Meira en helmingur starfsfólks hefur undanfarna mánuði unnið í fjarvinnu, sem gengið hefur vel.
Hægt er að horfa erindi Guðrúnar hér að neðan:
